普通文章
文章
首页
装修百科
居家风水
联系我们
设计团队
服务保障
别墅装修
行业资讯
最新活动
人物故事
最新动态
别墅设计案例
这里是别墅设计装修行业领头羊金牛装饰设计公司网站栏目内容页
广州别墅设计公司网站首页
别墅设计案例
三湘海尚别墅设计
三湘海尚别墅设计
原创
2022-03-09 01:55:53
0
次
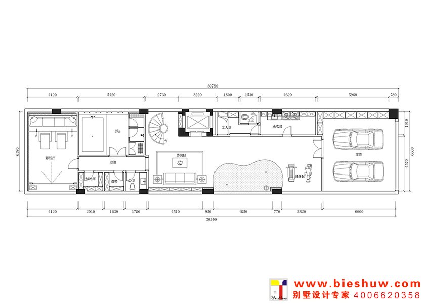
设计风格:现代简约
设计面积:700平方
设计说明:
清晨,主人在慵懒的晨曦中醒来,主卧灰灰的绿,洗手间淡淡的蓝,一天的生活在生命的色彩中
展开。步入阳台,一杯温水,远眺海天一色,清香拂面。呼吸着新鲜的空气,品味着大自然的芬芳,
清晨如此迷人!
早餐时间,长长的吧台边,孩子们调皮的喝着牛奶, 一边在吧椅上不安分的扭动着 不时有几
滴牛奶落在黑色的上 ,生活在嘻闹中无限温柔!
餐后,男主人在书房沉浸于自己的世界里。孩子趴在门外地毯上专注的摆弄心爱的玩具,一杯
咖啡,一曲琴音,天伦之乐,此生足以。
下午,客厅的沙发中,抱着最小的小公主,她还在给妈妈解释这动画片中的光头强。大孩子们
在兴奋的东奔西跑,偌大的客厅设计成了一家人的休闲舞台。
傍晚,孩子们在各自的房间进入梦乡。淡淡的色调给于小朋友无尽的童趣与温馨。在负一层的
休闲室,男主人随意的挥动着球杆 ,享受着这刻的怡然自得。在SPA室的浴池中,女主人闭上眼
嗅着空气中的幽香 在朵朵花瓣里 、在点点烛光中沉醉 ………..
生活如此美好!
三湘海
别墅
设计
上一篇:
泉州别墅-美式风格
下一篇:
托斯卡纳-美式风格
栏目索引
装修百科
居家风水
联系我们
设计团队
服务保障
别墅装修
行业资讯
最新活动
人物故事
最新动态
别墅设计案例
相关内容
1
上海小复式楼客厅装修设计
2
迷你型卫生间怎么设计?
3
武汉写字楼怎么装修?
4
等我退休了,我也想住这样的别墅,有阳光房...
5
西安宠物店装修设计细节